Los Valles plot of land for sale

  • 160,000€
Av. Santa Catalina, 35539, Las Palmas, Spain

Los Valles plot of land for sale

Av. Santa Catalina, 35539, Las Palmas, Spain
  • 160,000€

Overview

  • Land
  • Property Type
  • 277

Description

Los Valles plot of land for sale

Exceptional Plot with Building Permission and Panoramic Views in Los Valles
Price 160,000 euros

A fantastic opportunity to acquire an elevated plot of land with full planning permission in the peaceful village of Los Valles. Boasting breathtaking views across the stunning valley, and volcanic views to the East coast this generous 2,282m² plot offers both privacy and potential.

Conveniently located just a six minute drive from the charming historic town of Teguise, you’ll have easy access to all local amenities while enjoying a tranquil countryside setting.

The plot can be divided into two separate plots of approximately 1,140m² each, allowing for the construction of two individual properties if desired. The current owner has thoughtfully designed a project for one side of the plot, preserving the remaining space as a traditionally terraced garden with vines, fig, plum and passion fruit and leaving the option open for a second build in the future.

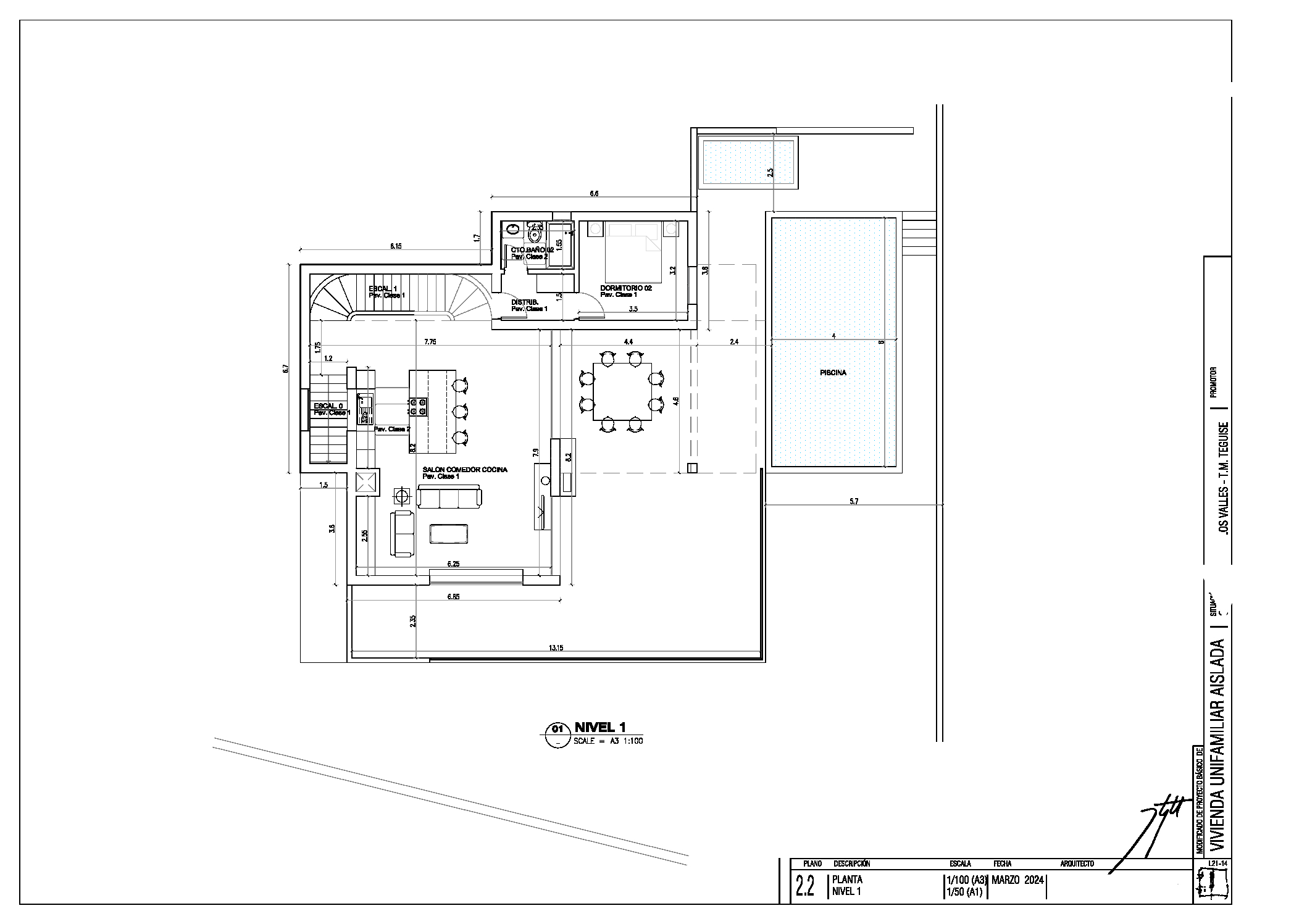
A striking architectural project of a 277m2 villa with a 7X5m2 swimming pool has already been submitted to the town hall. Designed across three floors, the proposed residence includes:

A double garage and additional bedroom with en-suite on the lower level

Two more spacious bedrooms and bathrooms on the upper levels

An open-plan kitchen with lounge and dining area leading out to a private pool, all positioned to take full advantage of the panoramic views

Whether you’re seeking to build a luxurious new home or a sound investment in a privileged location, this property offers a rare blend of space, design, and potential in the heart of Lanzarote’s serene countryside.

Contact Information

View Listings
freedom4sale

Enquire About This Property

  • City Lanzarote
  • State/county Las Palmas
  • Zip/Postal Code 25539
  • Area Los Valles
  • Country Spain

Mortgage Calculator

Monthly
  • Principal & Interest
%

Similar Listings

Compare listings

Compare
freedom4sale
  • freedom4sale